Where Nature Meets Vision: Sustainable Living in British Columbia
Logan Sustainable Housing
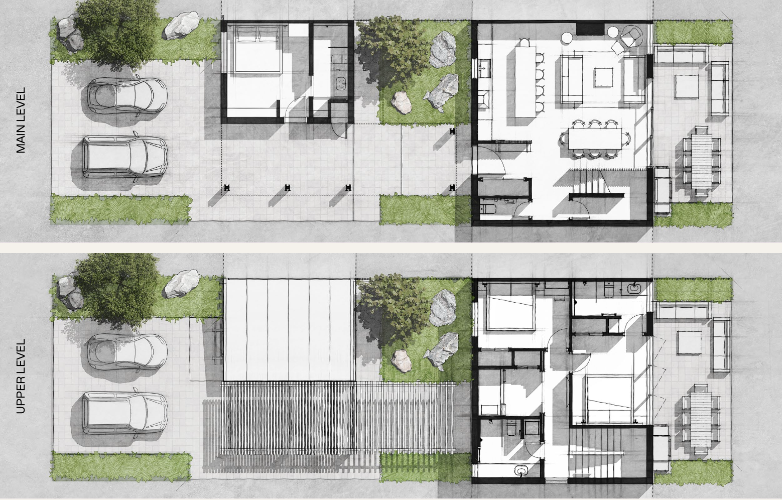
Step Code 4 Living in British Columbia
Shaped by the wild. Backed by vision. Built for legacy.
Logan Canada is proud to introduce three transformative projects across the iconic landscapes of British Columbia — Hallō Nelson, Hallō Pender, and Hallō Revelstoke. These developments combine master-planned community design, luxury resort living, and sustainable investment practices, aligned with Step Code 4 energy-efficiency standards to lead the next generation of environmentally conscious real estate, offering a rare opportunity to be part of the future of West Coast destination real estate.
Hallō Nelson
A Modern Mountain Community Anchored by a World-Class Golf Resort
Nestled in the Selkirk Mountains above Kootenay Lake, Hallō Nelson is a modern, master-planned community that redefines mountain living. Phase 1 features 24 fully furnished townhomes overlooking a revitalized TROON-operated golf course, with 300+ energy-efficient residences to follow—all built to BC Step Code 4 standards.
Rooted in affordability, sustainability, and inclusion, Hallō Nelson offers a diverse mix of housing—from rentals and condos with mortgage-helper suites to senior and workforce housing—designed to meet evolving community needs.
At its heart is a vibrant village centre featuring locally owned retail, cafés, wellness amenities, daycare, and seasonal recreation, including a water park, skating rink, and thermal spa. With revitalized golf facilities, boutique lodging, and stunning scenery, Hallō Nelson is a model for future-forward living in BC’s mountain towns.
Anchored by hospitality and retail amenities, Hallō Nelson offers a scalable, mixed-use urban village designed for walkability, tenant retention, and community-driven investment returns
300+ residential units including studio, 1BR, and 2BR apartments, built to BC Step Code 4 standards for maximum energy efficiency and long-term value
Hallō Pender
Elevated Forest Living on the Sunshine Coast
Set within a 17.5-acre private retreat, Hallō Pender features just 20 architecturally striking glass homes immersed in nature. Each home is raised above the forest floor with floor-to-ceiling windows, seamless indoor-outdoor flow, and luxury finishes. With resort-style amenities including a 25m pool, gym, and sauna, this exclusive community blends modern design with serenity.
Hallō Revelstoke
Hallō Revelstoke is a future-forward mountain destination that brings together high-end residential living with luxury hospitality. Phase 1 includes 42 resort homes and a flagship boutique hotel and spa, thoughtfully integrated into the natural topography. Located in one of North America’s most desirable adventure hubs, the site is poised for long-term value through seasonal appeal and experiential demand.
Coming soon…
Planning and Design
Strategic Design That Drives Long-Term Value
Each Hallō development — Nelson, Pender, and Revelstoke — has been shaped by a design philosophy that blends world-class architecture with data-informed site planning to maximize value and longevity. Logan Canada works closely with leading planners, consultants, and sustainability experts to ensure that every phase of the masterplan supports not just aesthetic appeal, but also operational efficiency, regulatory compliance, and capital preservation.
Thoughtfully programmed amenities — including a TROON-operated golf resort, curated boutique hotels, and wellness-focused residential layouts — were integrated early into the planning process to meet the expectations of discerning end-users and global travelers alike. This comprehensive approach ensures that each site is not only visually striking but also functionally resilient, contributing to strong projected ROI, accelerated market uptake, and reduced investor risk.
By prioritizing low-density, experiential luxury and Step Code 4 alignment across all sites, the Hallō brand is building a lasting foundation for value growth…

